
高台に位置し、城東の松山が一望できます。
目次
1.入口からバリアフリールームまで
| 入口ドア | 自動ドア |
| 段差 | なし |
| 傾斜 | なし |
| 車椅子専用駐車場 | あり |
| 通路幅 | 120cm以上 |
| 貸出用車椅子 | あり |
2.バリアフリールーム
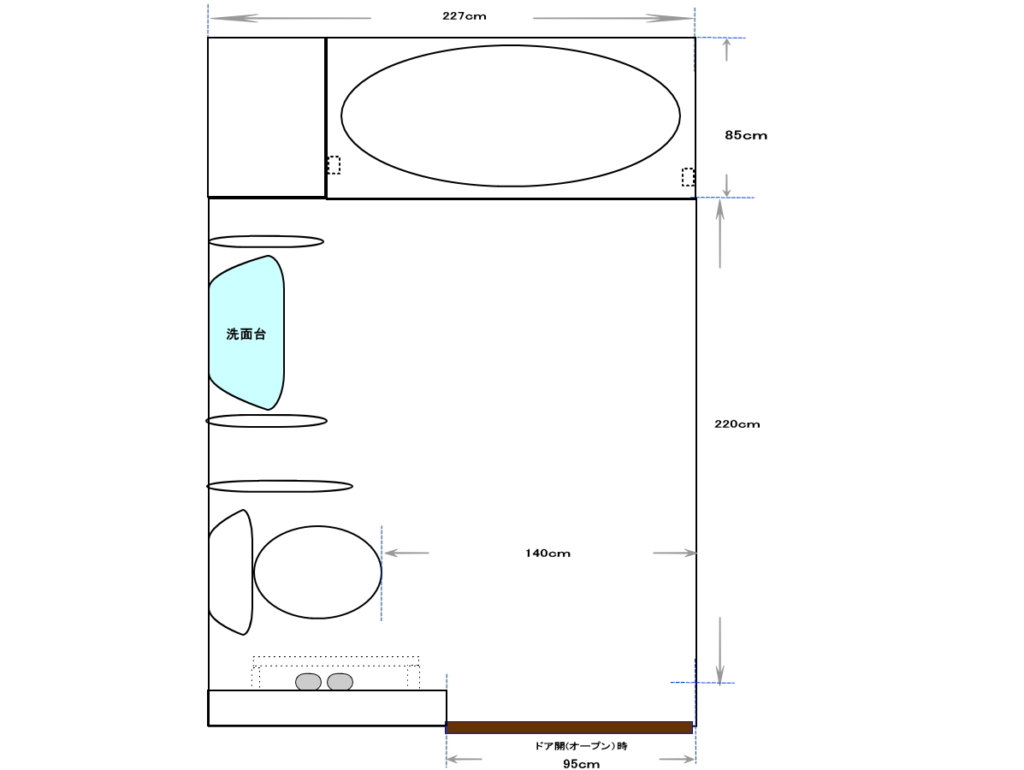
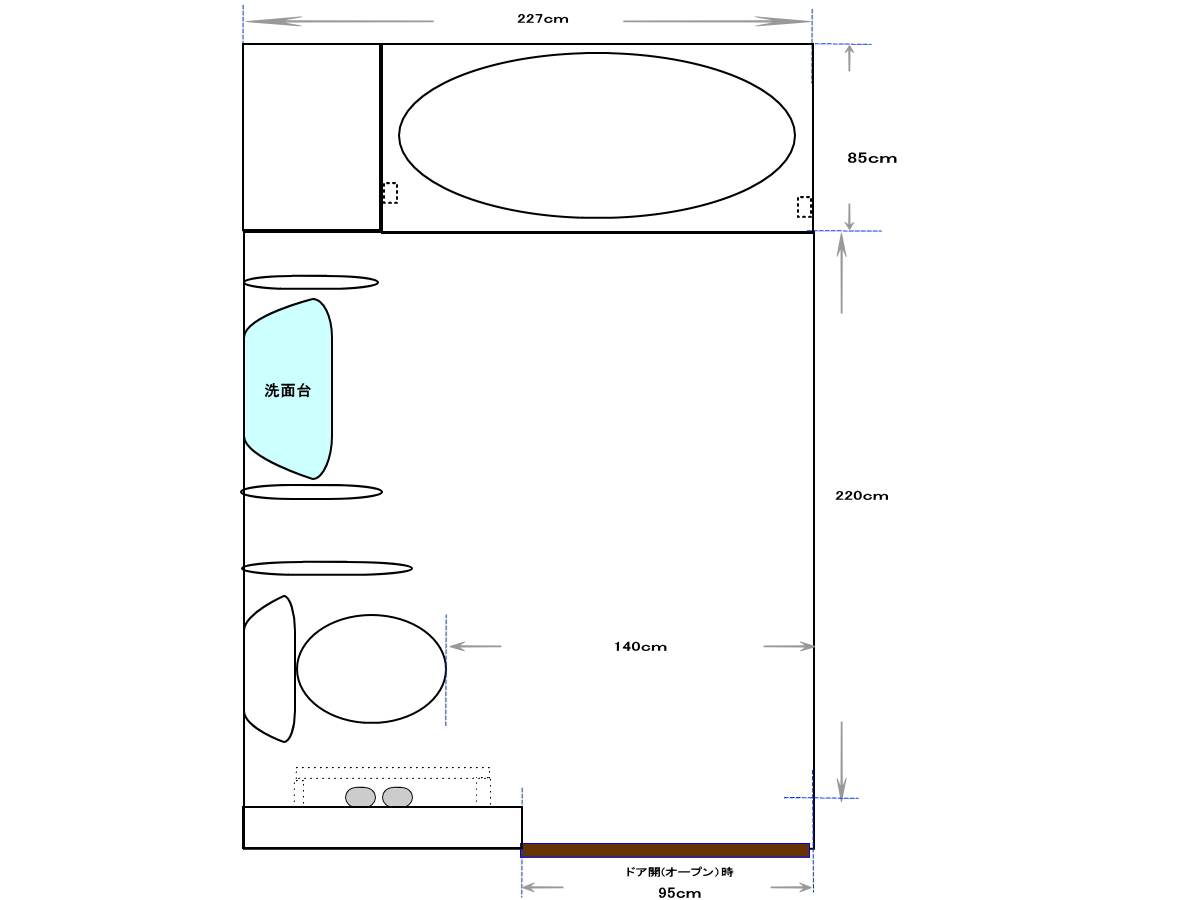
2-1. ベッドルーム
2-2. バスルーム
車いすが回転できるだけのスペースがあります。
入浴用介助器具一式揃っています。
3.バリアフリートイレ(共用)
バリアフリートイレは2階にあります。
4.浴場
浴室に入る際に段差がありますが、浴室入口のスロープを使用するか、ここで浴室用車椅子に乗り換えるとよいと思われます。
温泉の様子はこちらから(夢寛歩道後HP)も見れます。
5.食堂
料理内容はこちらから(夢寛歩HP)見れます。
6.ワンポイント
ホテル担当よりひと言
「当ホテル自慢のお料理とお風呂を是非お楽しみください!」
7.ロケーション&アクセス
美湯のやかた 夢寛歩 道後
住所:愛媛県松山市溝辺町3-1
電話:089-977-0460
FAX:089-977-0699
メール:miyu-yakata@yumekanpo-dogo.com
夢寛歩道後のホームページはこちらから
<マップ>
<最寄駅>
伊予鉄道道後温泉駅前からタクシー8分
もしくはこちら(夢寛歩道後HP)から
調査:2019年1月
調査時点での情報です。改修等で変更されていることがあります。
各サイズはスケールにて計測していますがおおよそですので参考としてください。
詳しくはホテルにお問い合わせ下さい。
調査協力モデル:Holly
関連施設
関連施設一覧協賛
- 詳しくはお問い合わせください





























